
拆除前的莲花山公园山顶公厕隐匿在树林中(图片来自雅本建筑微信公众号)

拆除前的莲花山公园山顶公厕资料图片(图片来自雅本建筑微信公众号)

莲花山公园山顶公厕拆除后的空地航拍图(图片来自雅本建筑微信公众号)

莲花山公园山顶公厕拆除后的空地图(图片来自雅本建筑微信公众号)
深圳新闻网11月2日讯(记者 张玲 钟鸿冰)深圳莲花山公园山顶广场公厕被拆了?什么时候的事情?为什么拆了?公园的游客到了山顶有内急如何解决?……11月1日,一则和莲花山顶公共厕所有关的微信文章在一些深圳人的朋友圈开始刷屏,尤其是建筑设计的业内人士,对公厕被拆表示十分心痛,不能理解。
11月2日上午,记者特地将此篇微信文章转给深圳市城管局,希望能获知公厕被拆除的原因。很快,11月2日傍晚,记者收到了城管局的回复:由于使用年份超过15年,加之游客人数增加,原公厕厕位不足,无法满足使用需求,莲花山公园山顶公厕拆除后将原址重建。
按照城管局的回复所述,新的莲花山公园山顶公厕设计借鉴了原公厕的设计理念和风格,总面积将达到950平方米,由男女卫生间、无障碍卫生间、母婴室、第三卫生间和多功能休息长廊组成。城管局的这份回复相当详尽,并配有历史照片和设计图纸(详见下文)。
目前,莲花山公园山顶公厕已移交深圳市建筑工务署负责建设,预计2018年底建成并投入使用。
莲花山顶公厕设计师心痛作品被拆 建议拆除前应进行评估论证
在朋友圈刷屏的微信文章来自雅本建筑的微信公众号,作者是费晓华。他在文章开篇写到,“著名的具有标杆意义的莲花山顶公共厕所,因未知原因,不幸于8月初被人神速而隐秘地拆除。英年早逝,十七华诞。”
费晓华是谁?他就是莲花山顶被拆除的公共厕所的设计师。
经常上莲花山公园山顶广场的人,大概都知道这个特别的公共厕所。不同于传统意义上的公厕,它隐匿于密林中,有一条廊桥将人们引入厕所。整栋建筑面积不大(约76平方米),悬在空中,相当轻盈。洗手池一侧面对人群,仅用带波浪造型的巨大玻璃墙体隔绝视线——从这个角度看,人们会觉得,“啊,这个厕所是晶莹剔透的”。但是厕位是隐蔽的另一面,只有上了厕所的人才知道,它面向山林,但并没有隐私暴露的担忧。

莲花山顶公共厕所的航拍图(图片来自雅本建筑微信公众号)

莲花山公园山顶公厕未拆除时的历史资料图片(图片来自雅本建筑微信公众号)

莲花山公园山顶公厕未拆除时的历史资料图片(图片来自雅本建筑微信公众号)

莲花山公园山顶公厕未拆除时的历史资料图片(图片来自雅本建筑微信公众号)

莲花山公园山顶公厕未拆除时的历史资料图片(图片来自雅本建筑微信公众号)
据雅本建筑的微信文章介绍,该公共厕所于2002年建成,由雅本建筑设计事务所费晓华设计。一经投入使用,即受到了社会各界的广泛好评,其设计中所体现的环境低冲击理念、人与自然的融合、生态节能技术的运用、人文关怀思想、高超的技艺所缔造的艺术境界、合理的功能布局与细致入微的节点设计等,均得到了业内外的广泛认可和尊重。
费晓华对自己的这个作品很是珍爱。他说,“从建成至今,它吸引了无数普通百姓和孩童的兴趣。人们既需要上厕所,通常又讨厌公共厕所的环境。但是,每当人们因好奇而步入该厕所时,却被其融入自然环境的舒适和对人性的尊重与关怀而久久不愿离去,完全实现了我朴素人文情怀的设计初衷:好的素颜厕所,不仅供人解急;更能使人愉悦,享受其中,而成为不愿离去的休闲场所。它靠的不是奢侈的投入和无厘头的噱头,它靠的是自然的素颜和高超的设计所体现的真正的对人的关爱。”
“同样,它也吸引了一批批年轻业界学子慕名前去参观和体验,作为生动可见的活教材,带领着有兴趣的学子成长为业界的翘楚。”
他在文中回忆说,有业界已成名的厕所设计专家在2017年的一次“厕所革命”的研讨会上,特地提起该厕所对他学生时期的影响,至今难以忘怀:“公共厕所已经设计了很多,每当再设计时,都想有所突破,做出更好的设计。但莲花山顶公共厕所,堪称经典,至今无法超越。”
费晓华在文中提到,“随着深圳人口和游客的剧增,莲花山顶公共厕所已不堪负重,急需扩大规模。2016年,本人受莲花山公园管理处的邀请,免费为他们提供了改扩建方案。方案共有两种思路:‘隐扩’和‘显扩’,均是在保留原建筑的基础上,扩大使用面积以满足更多人的需求。从更好地保护自然环境的角度出发,本人推荐‘隐扩’方案。” (附设计图)
费晓华称,“不知何故,没有了下文。”

费晓华应公园管理处之邀为山顶公厕设计的改扩建方案之一,隐扩方案(图纸来自雅本建筑微信公众号)

费晓华应公园管理处之邀为山顶公厕设计的改扩建方案之一,显扩方案(图纸来自雅本建筑微信公众号)
费晓华的文章结尾写到:事件既已发生,不可挽回。那么,痛定思痛,我们该如何反思,并建立什么样的机制来避免类似事件的再次发生呢?
首先,要从惯性思维上要进行全民性改良,摒弃“拆”文化。其次,要建立既有建筑的保护机制。最后,建议对拟拆除的公共建筑建筑,应考虑和安排好过度性措施。
费晓华认为,对不得不拆除的重要既有建筑,应坚持先评估、后公示、再决策的程序,组织城市规划、建筑、艺术等领域专家对拟拆除的建筑进行评估论证,广泛听取民众意见。
“很遗憾,莲花山顶公共厕所,拆除前未曾公示,亦不见公开评估论证。有违共商、共治、共享理念,剥夺了公众的知情权、参与权和监督权。程序有瑕疵。”
政协委员黄伟文转发了雅本建筑的这篇微信文章,他的留言是:顺便一说,这个厕所是我去选的址。我走到邓小平像背后一箭之地的偏僻处,指着一个山坡小坑说,就这里了,不许填挖方和砍树,解手时能享受到自然风景。然后费工就出了这个神作。我当年也提出过再往其南侧扩建茶室的想法。(记者备注:黄伟文当年在中心区开发建设办公室工作。)
城管局回应拆除公厕原因 公布原址重建新公厕图纸
11月2日傍晚,深圳市城管局给深圳新闻网记者发来详细的回复《深圳市城市管理局关于莲花山公园山顶公厕拆除重建的情况说明》,回应了公厕拆除的原因及未来的规划方案。
情况说明里提到,原莲花山山顶公厕于2002年建成开放,使用至今已超过15年。当时该公厕的设计理念新颖,设计风格契合环境,受到许多市民游客的喜爱。
情况说明公布了一组数据:随着深圳城市的快速发展,公园游客量逐年攀升,2017年莲花山公园年游客量达至千万人次,节假日期间山顶广场的游客量超过2万人次。由于原设计的厕位数量过少(女厕厕位4个,男厕厕位4个、小便斗6个),公厕门口常常出现大排长龙的现象。原公厕未设置母婴室和第三卫生间,不能满足特殊人群的需求。在深圳潮湿多雨的气候条件下,钢结构外表生锈,天花、底板渗水严重。化粪池设置在厕所正下方,异味较难散去。尽管公园管理处对山顶公厕连年修缮,仍无法从根本上解决问题。

深圳市城管局提供的莲花山公园山顶公厕进行修缮的资料图片

深圳市城管局提供的莲花山公园山顶公厕进行修缮的资料图片

深圳市城管局提供的莲花山公园山顶公厕进行修缮的资料图片
“2017年开始,深圳大力推行‘厕所革命’,在《城市公共厕所设计标准》(CJJ14-2016)的基础上制定了《深圳市高品质公厕建设与管理标准》。按照新的设计标准,公共厕所的男女厕位(男厕含小便斗)应根据最大游客量进行设计,比例应适当,公共厕所应设母婴室、第三卫生间、无障碍卫生间、工具房等功能空间。”
城管局在情况说明中明确回复称,莲花山公园山顶公厕将原址重建。
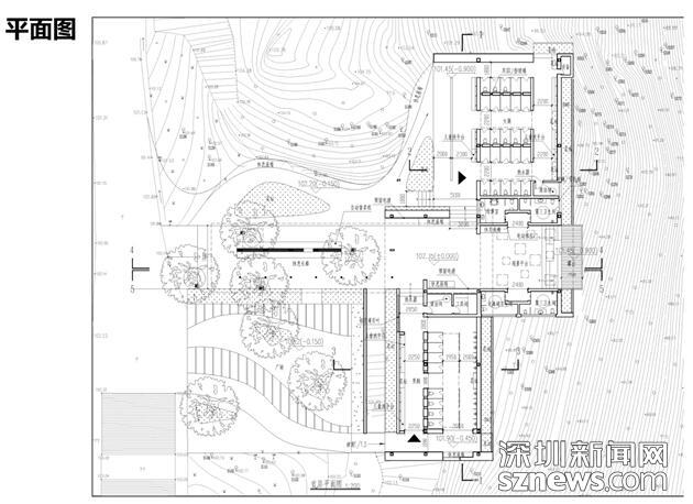
新的公厕设计借鉴了原公厕的设计理念和风格,总面积950平方米,由男女卫生间、无障碍卫生间、母婴室、第三卫生间和多功能休息长廊组成。男厕布置有16个厕位(含小便斗),女厕布置有25个厕位,极大地提高了游客高峰期的公厕服务能力。

莲花山公园山顶公共厕所原址重建效果图(深圳市城管局提供)
莲花山公园山顶公共厕所原址重建设计平面图(深圳市城管局提供)
记者了解到,原址重建的公厕将在部分男女卫生间厕格设助老设施和折叠婴儿座椅,厕格外设有空置提示灯。母婴室内设有温奶器、护理台,第三卫生间的布置考虑了父亲带女童、母亲带男童及成年子女带行动不便的父母等多层面如厕需求。
公厕建筑层高4.5米,能够较好的保证自然通风、室内采光和视线通透,在满足私密性的前提下引景入室,同时还利用灯光和背景音乐营造厕所优雅静谧的环境和氛围,并采用中水回收装置,提高水资源综合利用水平。休息长廊具有避雨及等候功能,同时设有自动售卖机、手机充电插座、垃圾分类回收、休息座椅等便民设施,东侧设有观景台。
情况说明称,“目前,莲花山公园山顶公厕已移交市建筑工务署负责建设,预计2018年底建成并投入使用。今后将按照高标准管理和维护,为市民游客提供优质服务。”